世纪龙城143平现代风格装修效果图
更新时间:2022-10-16 11:25:28
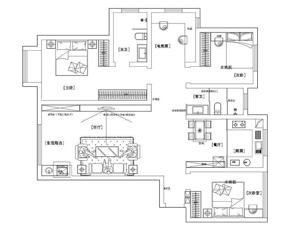
案例说明:业主是年轻小两口,喜欢不上班的时候宅家玩游戏,因此设计了一个电竞房,双人电脑桌,偶尔加班也可以当成书房使用,一举两得。喜欢家里看着简单干净的感觉,整体设计以白色调为主,温馨雅致,采用时尚的家居和装饰单品,提升品味。










免费申请户型规划
专属设计师免费1对1全程服务
更多案例推荐
国泰官邸
四居 | 170m² | 现代简约
海逸名门
普通住宅 | 147m² | 现代简约
佳兆业悦峰
三居 | 150m² | 中式风格
蓝堡湾
三居 | 135m² | 美式风格
普罗理想国
普通住宅 | 150m² | 现代简约
昌建翡翠苑
四居 | 137m² | 现代简约
金水府
四居 | 153m² | 侘寂风
西郡原著
四居 | 280m² | 现代简约
预约设计师


联系电话 :
我家装修该花多少钱?提前算一算
累计已有 10897 位业主获取报价