金水升龙150平现代风格三居室装修效果图
更新时间:2022-10-16 11:19:56
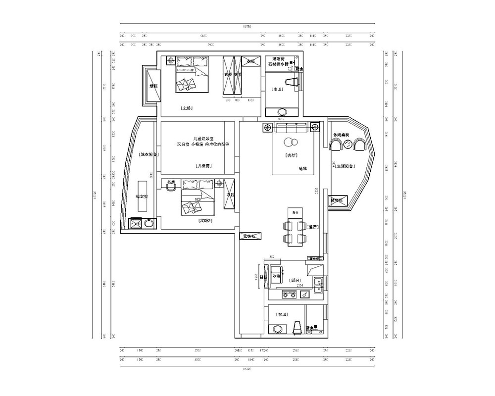
案例说明:业主装修婚房,设计了时尚简约的现代风格,还有餐桌岛台一体式的餐厅,方便使用和聚餐。考虑到业主未来会有孩子,不过孩子独立居住会是几年后,暂时还用不上儿童房,就设计为儿童娱乐室,孩子小的时候方便玩耍,提前预留好电源位置,方便以后灵活调整。主卧室的主卫对着床,设计了L型的步入式衣帽间,增加储物空间,还能遮挡主卫门。沙发背景设计为木格栅护墙板隐形门,好看大气,去客厅化设计,没有传统的电视墙,设计了隐藏的卷轴幕布,需要时打开即可。










免费申请户型规划
专属设计师免费1对1全程服务
更多案例推荐
国泰官邸
四居 | 170m² | 现代简约
海逸名门
普通住宅 | 147m² | 现代简约
佳兆业悦峰
三居 | 150m² | 中式风格
蓝堡湾
三居 | 135m² | 美式风格
普罗理想国
普通住宅 | 150m² | 现代简约
昌建翡翠苑
四居 | 137m² | 现代简约
金水府
四居 | 153m² | 侘寂风
西郡原著
四居 | 280m² | 现代简约
预约设计师


联系电话 :
我家装修该花多少钱?提前算一算
累计已有 10897 位业主获取报价