刘岗小新城128平现代简约风格装修效果图
更新时间:2022-10-12 16:40:22
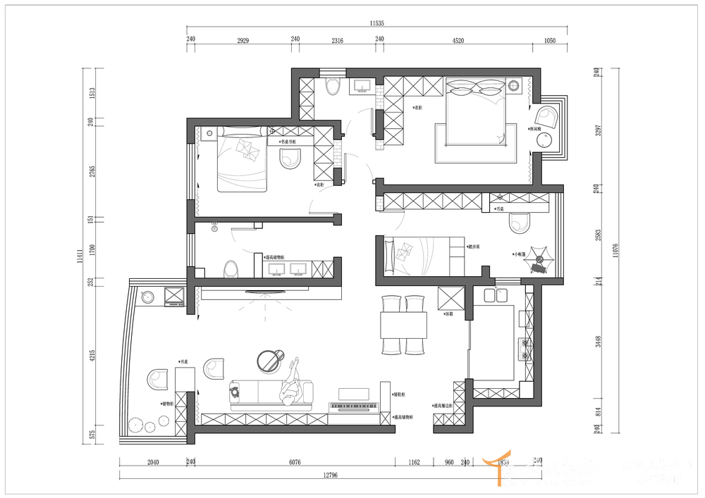
设计说明:本案以现代简约风格为主,带一点原木风的感觉,业主很喜欢原木带给人的温暖干净的家居空间,家里有小朋友弹钢琴,卧室放不下只能放在客厅,成为了客厅的一景!
有几点改动还是挺有意思的
1、客厅沙发背后做了整面的储物柜,增加储物空间
2、主卧卫生间的门改动位置,使卧室的利用率更大化
3、厨房阳台的区域放到了小朋友的卧室里,增设采光和读书的空间
4、客卫生间双台盆,家里两个小朋友早上上学再也不用担心洗漱时间,房子只是能居住的空间,有生活气息才是家适合每一个家庭成员的生活习惯小细节才是完美的!






下一篇:金水府142平法式风格装修效果图
免费申请户型规划
专属设计师免费1对1全程服务
更多案例推荐
国泰官邸
四居 | 170m² | 现代简约
海逸名门
普通住宅 | 147m² | 现代简约
佳兆业悦峰
三居 | 150m² | 中式风格
蓝堡湾
三居 | 135m² | 美式风格
普罗理想国
普通住宅 | 150m² | 现代简约
昌建翡翠苑
四居 | 137m² | 现代简约
金水府
四居 | 153m² | 侘寂风
西郡原著
四居 | 280m² | 现代简约
预约设计师


联系电话 :
我家装修该花多少钱?提前算一算
累计已有 10897 位业主获取报价