瑞秀苑80平现代奶油风两居室装修效果图
更新时间:2024-04-10 17:02:16
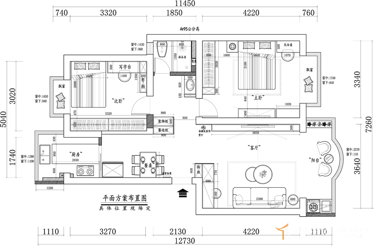
案例说明:原来厨房很小,把厨房直接往里面移,舍弃了原有的生活阳台,直接纳入厨房,将厨房变大,视野拓宽。餐桌和厨房做了延伸,有一个很舒适的一家三口餐厅区,餐桌的旁边是双开门冰箱的位置,餐桌对面是餐边柜的位置,满足多种小家电的存放空间。这里做了一个背靠背的柜子设计,增加了储物功能,也可以做卫生间门的隔断,一举两得。





免费申请户型规划
专属设计师免费1对1全程服务
更多案例推荐
国泰官邸
四居 | 170m² | 现代简约
海逸名门
普通住宅 | 147m² | 现代简约
佳兆业悦峰
三居 | 150m² | 中式风格
蓝堡湾
三居 | 135m² | 美式风格
普罗理想国
普通住宅 | 150m² | 现代简约
昌建翡翠苑
四居 | 137m² | 现代简约
金水府
四居 | 153m² | 侘寂风
西郡原著
四居 | 280m² | 现代简约
预约设计师


联系电话 :
我家装修该花多少钱?提前算一算
累计已有 10897 位业主获取报价