巴黎印象75平现代简约风格两居室装修效果图
更新时间:2024-04-10 16:55:12
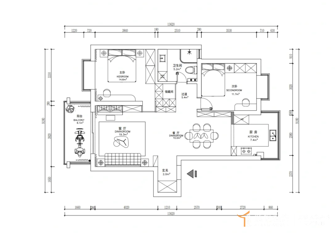
案例说明: 房屋整个大布局上没有改动,只是在靠近卫生间处增加了单独的收纳区,扩大储物空间;将钢琴完全嵌入电视机背景墙中,既增加了空间利用率还满足了业主需求,黑白调的房屋布局简单大气,卧室做不同设计,主卧的干净,儿童房的童趣,让空间整体舒适高级。







免费申请户型规划
专属设计师免费1对1全程服务
更多案例推荐
国泰官邸
四居 | 170m² | 现代简约
海逸名门
普通住宅 | 147m² | 现代简约
佳兆业悦峰
三居 | 150m² | 中式风格
蓝堡湾
三居 | 135m² | 美式风格
普罗理想国
普通住宅 | 150m² | 现代简约
昌建翡翠苑
四居 | 137m² | 现代简约
金水府
四居 | 153m² | 侘寂风
西郡原著
四居 | 280m² | 现代简约
预约设计师


联系电话 :
我家装修该花多少钱?提前算一算
累计已有 10897 位业主获取报价