望族苑150平现代轻奢风格四居室装修效果图
更新时间:2024-03-24 10:06:01
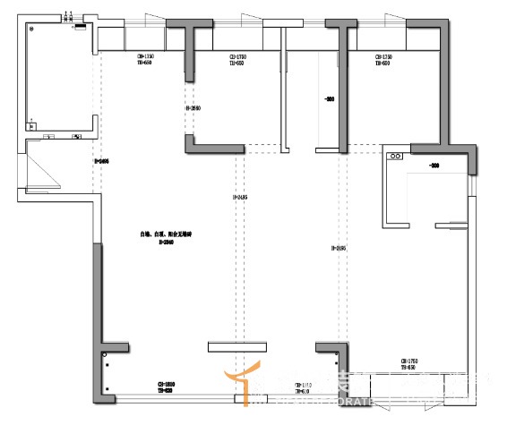
案例说明:设计思路分析
1.餐边柜做厨房一侧,厨房做梭门隐藏,让空间变大
2.餐厨一体设计,增加橱柜操作台面,半敞开式厨房
3.主卧室改变原始门洞,床尾做联排衣柜。
聚拢温暖内核
在设计中洞见生活本质







免费申请户型规划
专属设计师免费1对1全程服务
更多案例推荐
国泰官邸
四居 | 170m² | 现代简约
海逸名门
普通住宅 | 147m² | 现代简约
佳兆业悦峰
三居 | 150m² | 中式风格
蓝堡湾
三居 | 135m² | 美式风格
普罗理想国
普通住宅 | 150m² | 现代简约
昌建翡翠苑
四居 | 137m² | 现代简约
金水府
四居 | 153m² | 侘寂风
西郡原著
四居 | 280m² | 现代简约
预约设计师


联系电话 :
我家装修该花多少钱?提前算一算
累计已有 10897 位业主获取报价