金源天玺180平新中式风格装修效果图
更新时间:2023-08-13 09:53:35
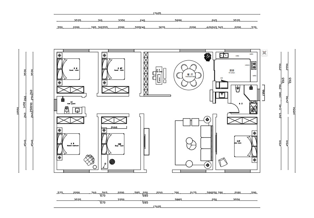
案例说明:本案是180平方米五室两厅两卫毛坯户型,客户是第二套改善型住房,要求新中式风格,原空间改动较小,只在原有空间内增加生活化的功能,宁静不是无声的乐章,更多的是缥缈于身边的丰富体验在透过世间外物之后回归初心的片刻惬意时光,设计从东方美学出发,由繁入简,回归自我。





免费申请户型规划
专属设计师免费1对1全程服务
更多案例推荐
国泰官邸
四居 | 170m² | 现代简约
海逸名门
普通住宅 | 147m² | 现代简约
佳兆业悦峰
三居 | 150m² | 中式风格
蓝堡湾
三居 | 135m² | 美式风格
普罗理想国
普通住宅 | 150m² | 现代简约
昌建翡翠苑
四居 | 137m² | 现代简约
金水府
四居 | 153m² | 侘寂风
西郡原著
四居 | 280m² | 现代简约
预约设计师


联系电话 :
我家装修该花多少钱?提前算一算
累计已有 10897 位业主获取报价