普罗理想国250平现代轻奢风格装修效果图
更新时间:2023-03-18 16:41:17
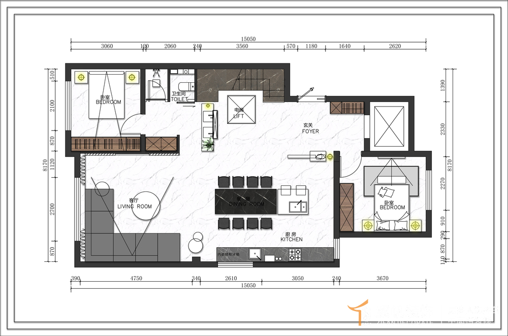
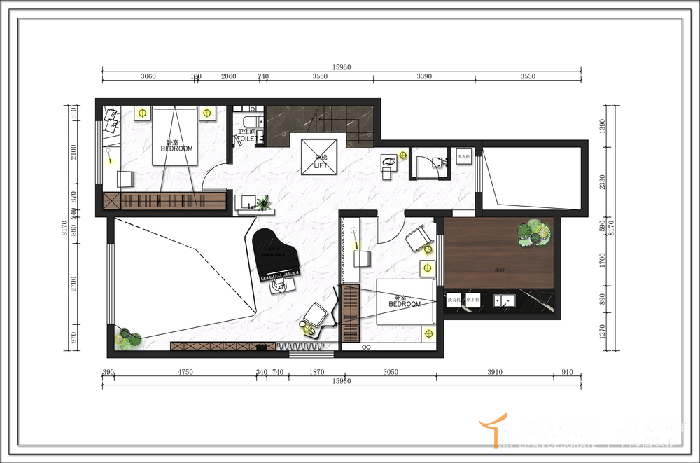
案例说明:这套作品是现代轻奢风格;客厅上方做了挑空设计,整面山水沙发背景墙使空间的大气展露无疑,电视背景墙下方做展示开放格,上方做的鱼肚白石材,材质的拼接转换增加灵动性;开放式厨房和餐厅融为一体,进一步表现空间的开阔大气。二层女儿房门口的小厅放了一把休闲椅,闲暇时光可以略作休息,阅读书籍。










免费申请户型规划
专属设计师免费1对1全程服务
更多案例推荐
国泰官邸
四居 | 170m² | 现代简约
海逸名门
普通住宅 | 147m² | 现代简约
佳兆业悦峰
三居 | 150m² | 中式风格
蓝堡湾
三居 | 135m² | 美式风格
普罗理想国
普通住宅 | 150m² | 现代简约
昌建翡翠苑
四居 | 137m² | 现代简约
金水府
四居 | 153m² | 侘寂风
西郡原著
四居 | 280m² | 现代简约
预约设计师


联系电话 :
我家装修该花多少钱?提前算一算
累计已有 10897 位业主获取报价