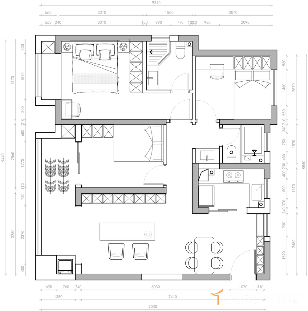
融侨雅筑113平现代风格三居室装修效果图
更新时间:2023-03-18 16:15:50
案例说明:业主是对于生活非常注重细节的女士,自己也非常有想法,有创意。,是一个非常有责任心,注重对于子女的教育,整体的布局和色调呈现一种暖色,摒弃家中常规的客厅用来摆放电视背景墙等,更注重于文学修养,书香气息。整体空间亮而不燥,却又能给人一种沉寂的稳静,正所谓“八风吹不动,端坐紫金莲”。







免费申请户型规划
专属设计师免费1对1全程服务
更多案例推荐
国泰官邸
四居 | 170m² | 现代简约
海逸名门
普通住宅 | 147m² | 现代简约
佳兆业悦峰
三居 | 150m² | 中式风格
蓝堡湾
三居 | 135m² | 美式风格
普罗理想国
普通住宅 | 150m² | 现代简约
昌建翡翠苑
四居 | 137m² | 现代简约
金水府
四居 | 153m² | 侘寂风
西郡原著
四居 | 280m² | 现代简约
预约设计师


联系电话 :
我家装修该花多少钱?提前算一算
累计已有 10897 位业主获取报价