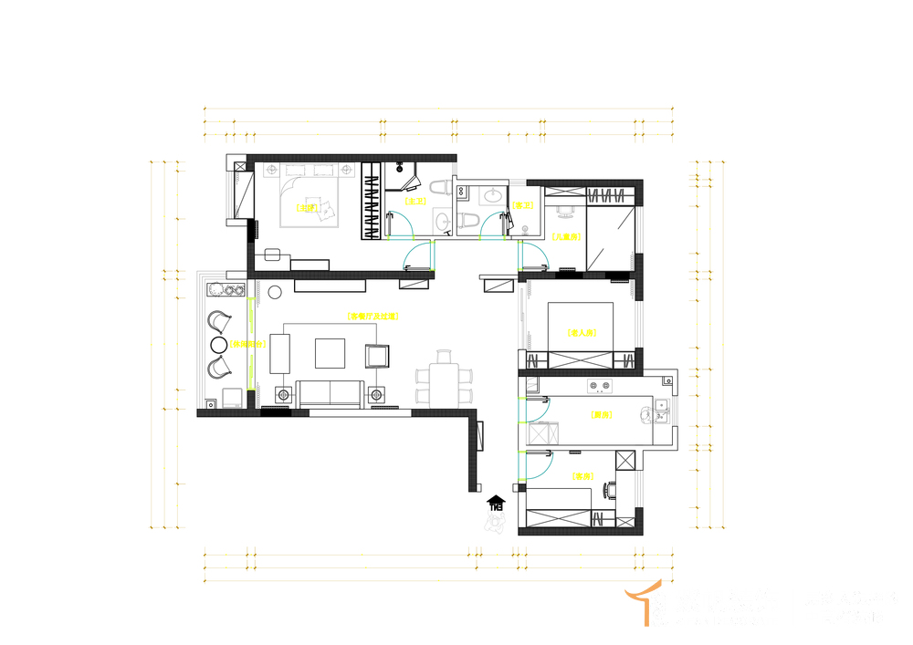
绿地璀璨天城122平现代风格三居室装修效果图
更新时间:2023-03-18 15:28:57
案例说明:业主为95后夫妻,对空间要求:户型采光不好,墙面尽量涂刷提亮空间的颜色,不喜欢空间太平,需要有跳色。
本案整体风格:北欧,墙顶面大面积涂刷白色用于提亮空间,局部运用爱马仕橙-湖蓝色点亮空间!






免费申请户型规划
专属设计师免费1对1全程服务
更多案例推荐
国泰官邸
四居 | 170m² | 现代简约
海逸名门
普通住宅 | 147m² | 现代简约
佳兆业悦峰
三居 | 150m² | 中式风格
蓝堡湾
三居 | 135m² | 美式风格
普罗理想国
普通住宅 | 150m² | 现代简约
昌建翡翠苑
四居 | 137m² | 现代简约
金水府
四居 | 153m² | 侘寂风
西郡原著
四居 | 280m² | 现代简约
预约设计师


联系电话 :
我家装修该花多少钱?提前算一算
累计已有 10897 位业主获取报价