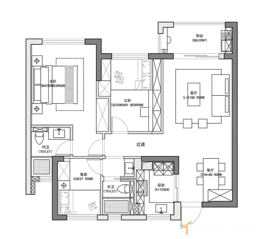
盛润花园120平极简风格装修效果图
更新时间:2022-11-09 16:20:53
案例说明:整体白色简约 没有任何多余造型 空间多用灯带作为氛围灯使用 不加点缀和修饰 使用木地板增加空间整体质感 电视墙整体柜做平板隐形 增大储存空间 并当做投影幕布使用 整体设计没有一点多余 简单到极致 给人强烈的视觉感觉 突出极简的性格 加入简单的几个绿植是空间瞬间活跃起来 榻榻米满足使用需求并加大储存空间










免费申请户型规划
专属设计师免费1对1全程服务
更多案例推荐
国泰官邸
四居 | 170m² | 现代简约
海逸名门
普通住宅 | 147m² | 现代简约
佳兆业悦峰
三居 | 150m² | 中式风格
蓝堡湾
三居 | 135m² | 美式风格
普罗理想国
普通住宅 | 150m² | 现代简约
昌建翡翠苑
四居 | 137m² | 现代简约
金水府
四居 | 153m² | 侘寂风
西郡原著
四居 | 280m² | 现代简约
预约设计师


联系电话 :
我家装修该花多少钱?提前算一算
累计已有 10897 位业主获取报价