河南大学家属院155平简约风格装修效果图
更新时间:2022-11-09 14:20:47
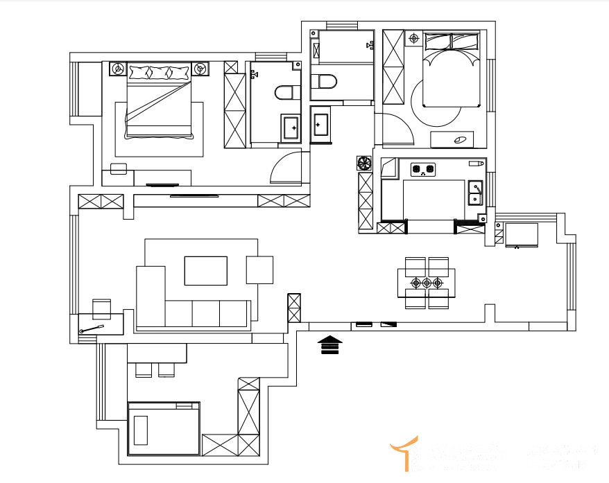
案例说明: 业主和他爱人都是大学老师,对生活品味要求高,注重细节的把控和处理。居住五口人,夫妻两人,父母,还有一个10岁的女孩,还要考虑三代人的起居,喜好和作息。所以说从色彩上要回归自然的平衡,空间要考虑合理和舒适。






免费申请户型规划
专属设计师免费1对1全程服务
更多案例推荐
国泰官邸
四居 | 170m² | 现代简约
海逸名门
普通住宅 | 147m² | 现代简约
佳兆业悦峰
三居 | 150m² | 中式风格
蓝堡湾
三居 | 135m² | 美式风格
普罗理想国
普通住宅 | 150m² | 现代简约
昌建翡翠苑
四居 | 137m² | 现代简约
金水府
四居 | 153m² | 侘寂风
西郡原著
四居 | 280m² | 现代简约
预约设计师


联系电话 :
我家装修该花多少钱?提前算一算
累计已有 10897 位业主获取报价