金沙湖高尔夫官280平新中式风格装修效果图
更新时间:2022-10-16 15:23:32
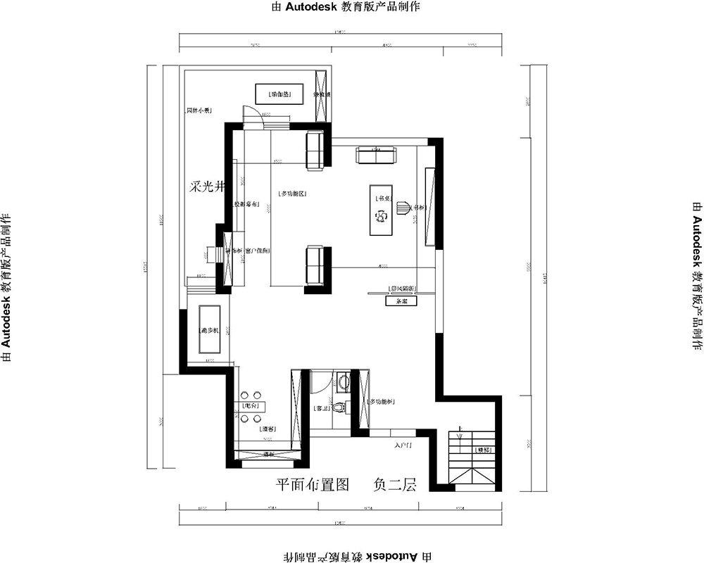
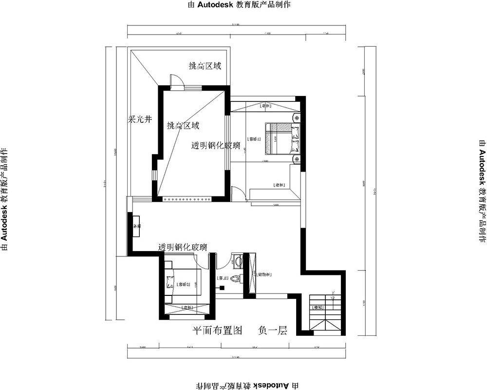
案例说明:业主家交房时候一楼是完整的户型结构,负一负二只有承重墙体,需要重新设计新建墙体,来完成户型结构,还有楼梯重新开楼梯井,施工难度和工作量不小。经过2个月的充分沟通,根据业主的居住需求设计了挑高的多功能厅,可以看家庭影院和会客,还有开放式的书房,酒窖,衣帽间,客卧,采光井设计成室内园林小景,以及练瑜伽的空间。让业主在家足不出户享受惬意生活。











免费申请户型规划
专属设计师免费1对1全程服务
更多案例推荐
国泰官邸
四居 | 170m² | 现代简约
海逸名门
普通住宅 | 147m² | 现代简约
佳兆业悦峰
三居 | 150m² | 中式风格
蓝堡湾
三居 | 135m² | 美式风格
普罗理想国
普通住宅 | 150m² | 现代简约
昌建翡翠苑
四居 | 137m² | 现代简约
金水府
四居 | 153m² | 侘寂风
西郡原著
四居 | 280m² | 现代简约
预约设计师


联系电话 :
我家装修该花多少钱?提前算一算
累计已有 10897 位业主获取报价