裕华会园122平现代简约风格装修效果图
更新时间:2022-10-15 15:41:12
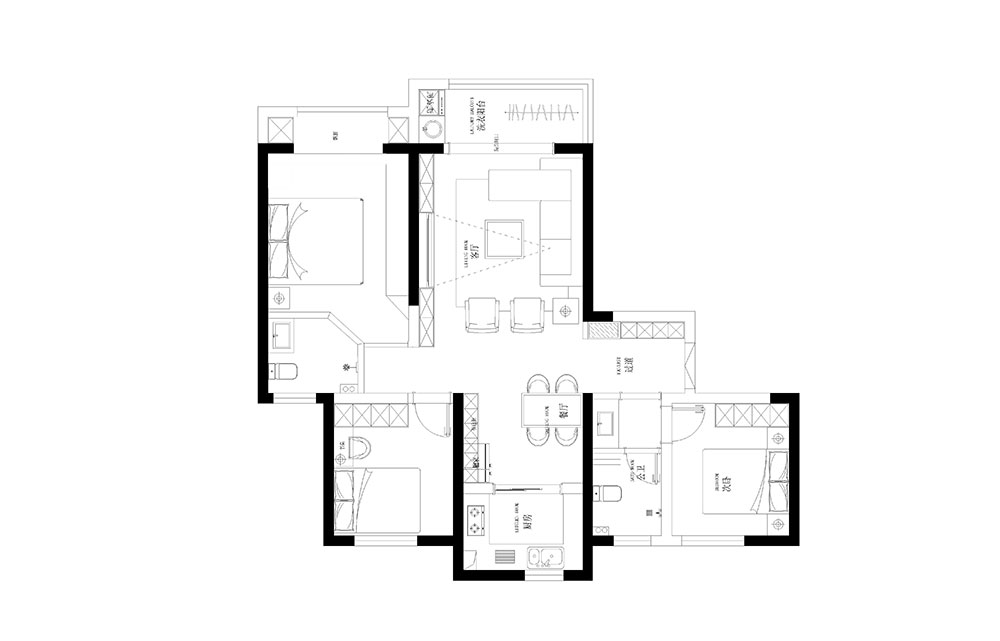
案例说明:这套房子为改善型住房,有个可爱的女儿,预留一间客房,所以三房保留,客户喜欢温馨的感觉、家里储物量要求过多男业主有很多手办,所以整体色调以暖色为主,电视背景墙用柜子做造型增加储物空间,部门地方用玻璃做柜门,展示出手办的效果。









免费申请户型规划
专属设计师免费1对1全程服务
更多案例推荐
国泰官邸
四居 | 170m² | 现代简约
海逸名门
普通住宅 | 147m² | 现代简约
佳兆业悦峰
三居 | 150m² | 中式风格
蓝堡湾
三居 | 135m² | 美式风格
普罗理想国
普通住宅 | 150m² | 现代简约
昌建翡翠苑
四居 | 137m² | 现代简约
金水府
四居 | 153m² | 侘寂风
西郡原著
四居 | 280m² | 现代简约
预约设计师


联系电话 :
我家装修该花多少钱?提前算一算
累计已有 10897 位业主获取报价