阳光城檀悦129平现代简约风格装修效果图
更新时间:2022-10-14 17:05:17
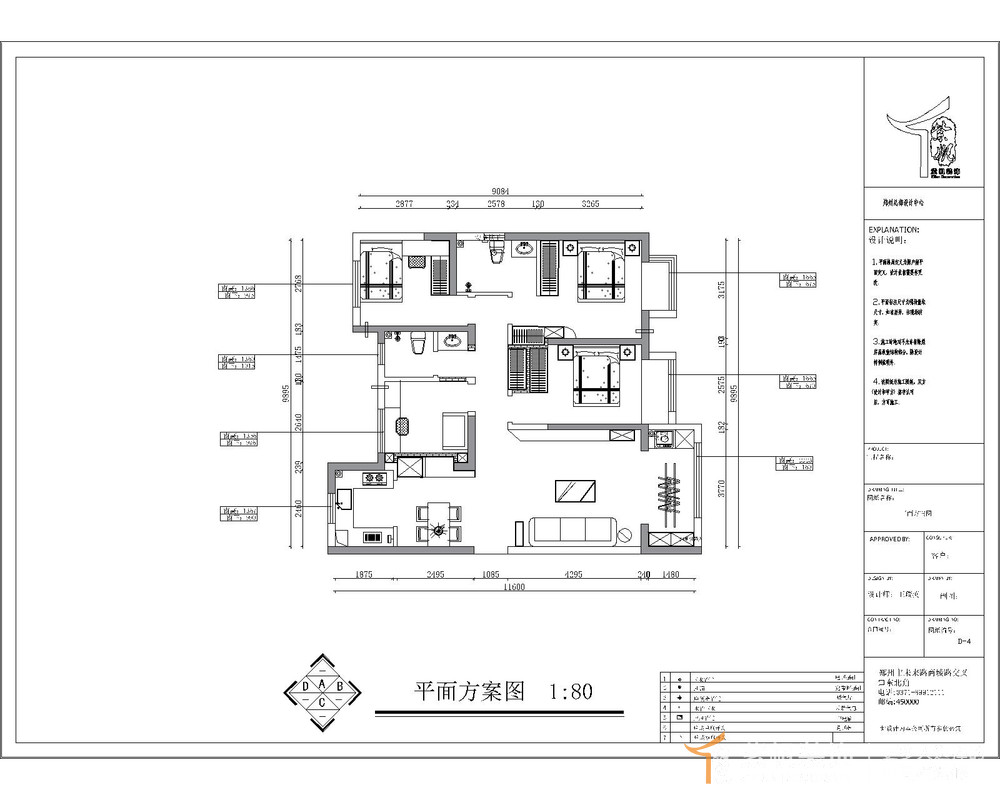
案例说明:本案业主喜欢简单,明亮的颜色,素色,要求储物, 从客户角度出发,尽量增加储物,同时保证户型的明亮,不因储物减小室内活动动线,设计效果简单,户型改动上进行了多处处理!







免费申请户型规划
专属设计师免费1对1全程服务
更多案例推荐
国泰官邸
四居 | 170m² | 现代简约
海逸名门
普通住宅 | 147m² | 现代简约
佳兆业悦峰
三居 | 150m² | 中式风格
蓝堡湾
三居 | 135m² | 美式风格
普罗理想国
普通住宅 | 150m² | 现代简约
昌建翡翠苑
四居 | 137m² | 现代简约
金水府
四居 | 153m² | 侘寂风
西郡原著
四居 | 280m² | 现代简约
预约设计师


联系电话 :
我家装修该花多少钱?提前算一算
累计已有 10897 位业主获取报价