正商裕园101平现代风格装修效果图
更新时间:2022-10-14 16:41:06
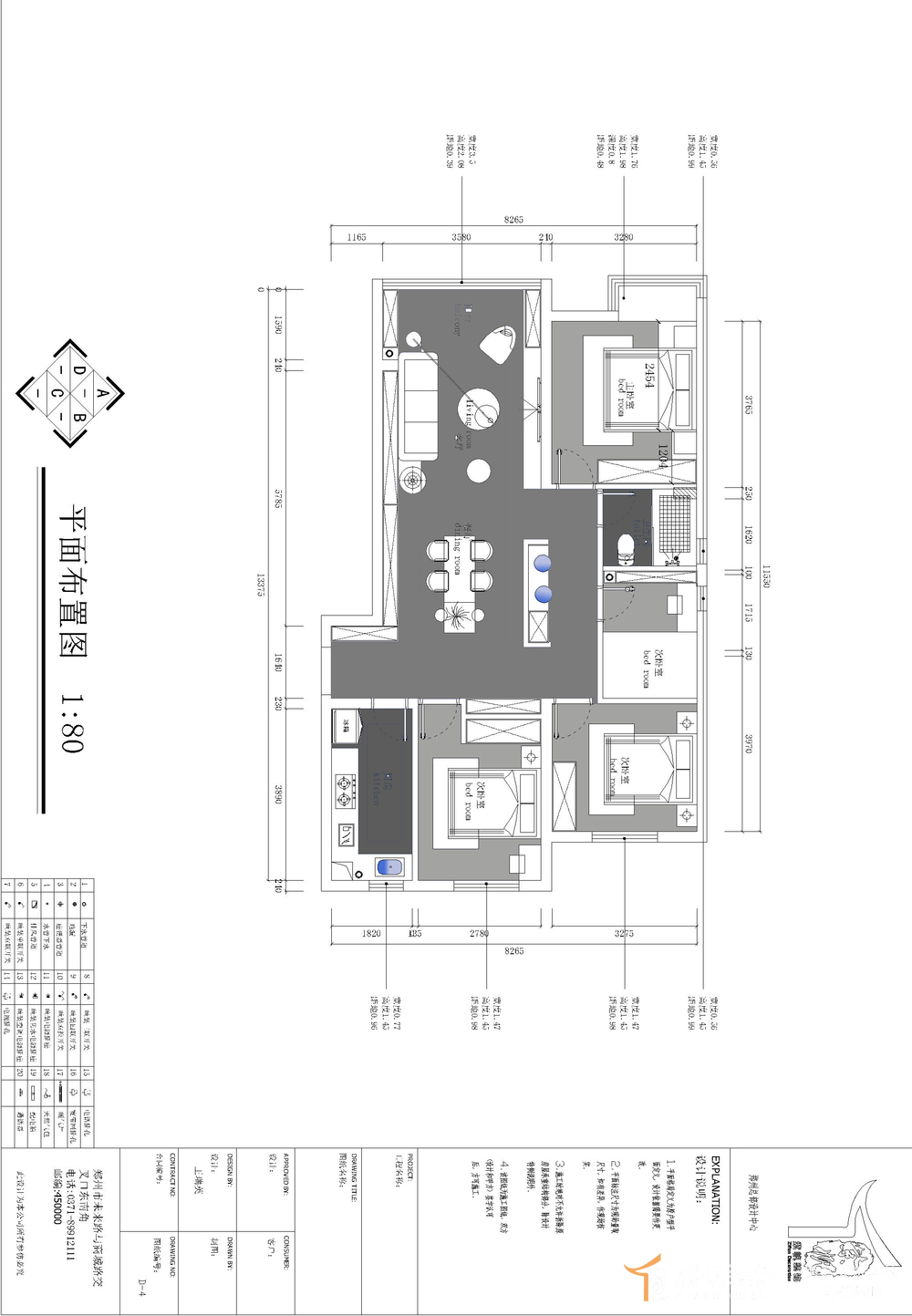
案例说明:方案风格定位现代风格,户型原始结构三方两厅,主要解决客户四房需求,通过采光点分析,以及实际人口需求,对户型进行了比较大的拆改,完美实现四房需求,卫生间外置的双手盆,以及内嵌的洗衣柜,也是家里一大亮点,整体造型采用了现代风格的线条,以及色块拼装,大胆的颜色碰撞让整个空间充满了更多的可能性。





免费申请户型规划
专属设计师免费1对1全程服务
更多案例推荐
国泰官邸
四居 | 170m² | 现代简约
海逸名门
普通住宅 | 147m² | 现代简约
佳兆业悦峰
三居 | 150m² | 中式风格
蓝堡湾
三居 | 135m² | 美式风格
普罗理想国
普通住宅 | 150m² | 现代简约
昌建翡翠苑
四居 | 137m² | 现代简约
金水府
四居 | 153m² | 侘寂风
西郡原著
四居 | 280m² | 现代简约
预约设计师


联系电话 :
我家装修该花多少钱?提前算一算
累计已有 10897 位业主获取报价